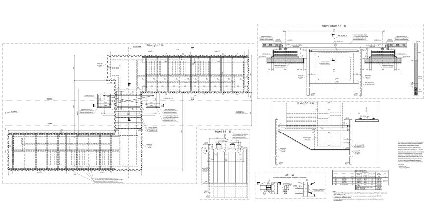
Projekt Montażu Konstrukcji Odciążającej i Zabezpieczenia Wykopu Lokalizacja: Linia kolejowa E65, stacja Gralewo Rozpiętość teoretyczna konstrukcji odciążającej: 10,8 m Rodzaj konstrukcji: stalowa. Projekt wykonawczy. Obiekt zrealizowany.