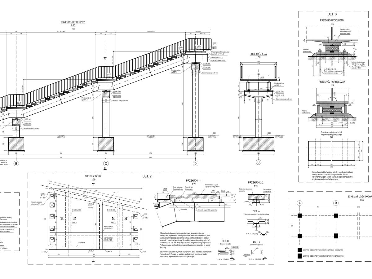
Kładka Pod Mostem Pokoju
Lokalizacja: Wrocław, Bulwar Xawerego Dunikowskiego Długość całkowita: 57,4 m Rodzaj konstrukcji: pomost stalowy, podpory żelbetowe. Projekt budowlany i wykonawczy.
Lokalizacja: Wrocław, Bulwar Xawerego Dunikowskiego Długość całkowita: 57,4 m Rodzaj konstrukcji: pomost stalowy, podpory żelbetowe. Projekt budowlany i wykonawczy.
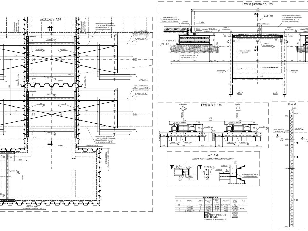
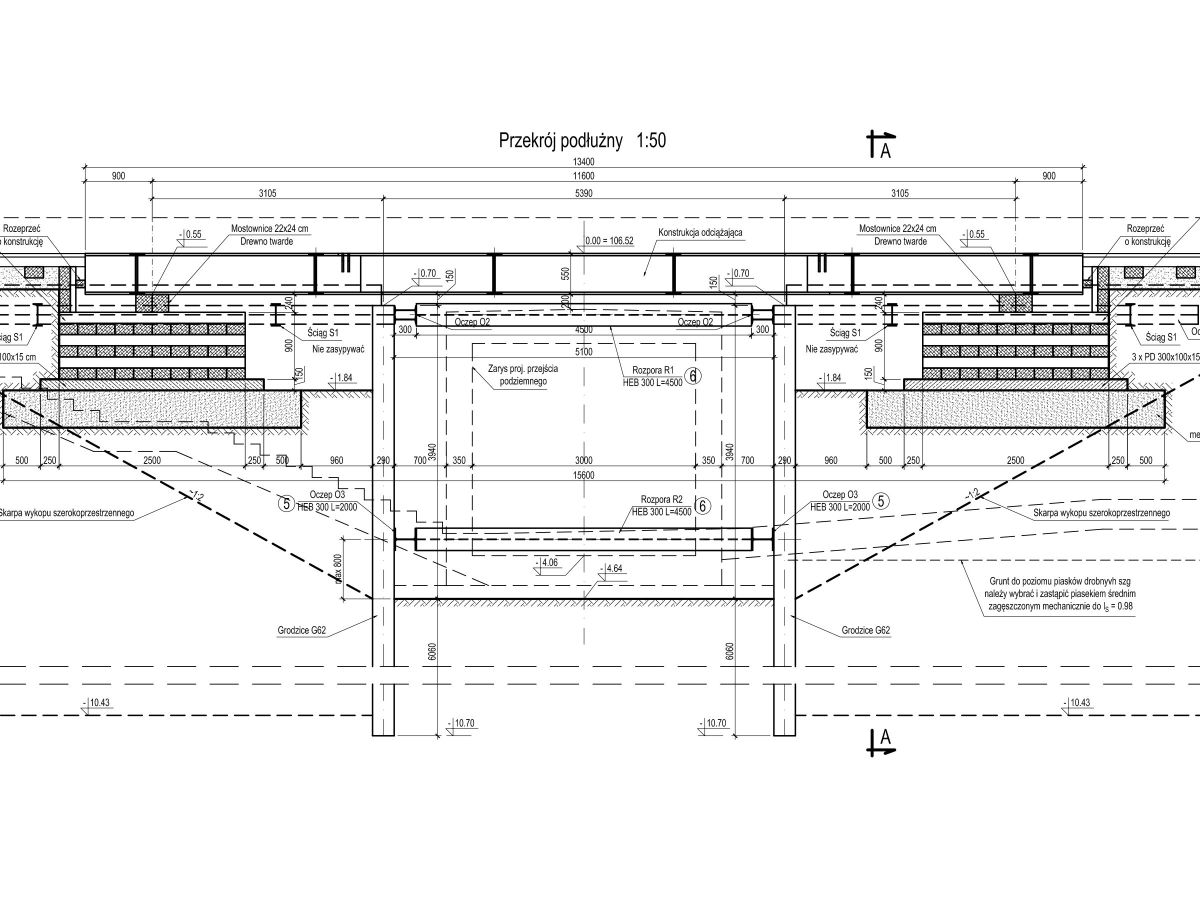
Lokalizacja: Linia kolejowa E59, odcinek Pęgów – Oborniki Śląskie Rozpiętość teoretyczna konstrukcji odciążającej: 21,8 m Rodzaj konstrukcji: stalowa. Projekt wykonawczy. Obiekt zrealizowany.
Lokalizacja: Linia kolejowa E59, odcinek Pęgów – Skokowa Rozpiętość teoretyczna konstrukcji odciążających: 5,6 m Rodzaj konstrukcji: stalowa. Projekt wykonawczy. Obiekty zrealizowane.
Lokalizacja: Warszawa, ul. Towarowa Rodzaj konstrukcji: stalowa. Projekt wykonawczy. Obiekt zrealizowany.
Lokalizacja: Warszawa, ul. Kinowa (węzeł Ostrobramska) Rodzaj konstrukcji: stalowa. Projekt wykonawczy. Obiekt zrealizowany.
Lokalizacja: Warszawa Rodzaj konstrukcji: stalowa. Projekt wykonawczy. Obiekt zrealizowany.
Lokalizacja: Linia kolejowa Warszawa – Łódź Długość zabezpieczenia: 45,0 m Rodzaj konstrukcji: ścianka szczelna z grodzic stalowych. Projekt wykonawczy. Obiekt zrealizowany.
Lokalizacja: Droga gminna Jaroszki – Stoki Rozpiętość teoretyczna: 8,0 m Rodzaj konstrukcji: żelbetowa. Projekt wykonawczy. Obiekt zrealizowany.
Lokalizacja: Warszawa, ul. Wyszkowska Rozpiętość teoretyczna: 14,4 m Rodzaj konstrukcji: żelbetowa. Projekt budowlano – wykonawczy. Obiekt zrealizowany.
Lokalizacja: Warszawa, ul. Kasprzaka Rozpiętość teoretyczna: 14,5 m Rodzaj konstrukcji: żelbetowa. Projekt wykonawczy. Obiekt zrealizowany.
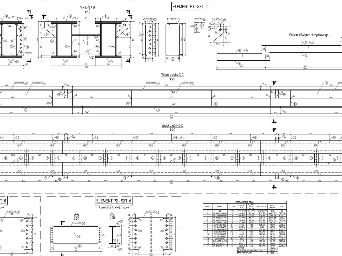
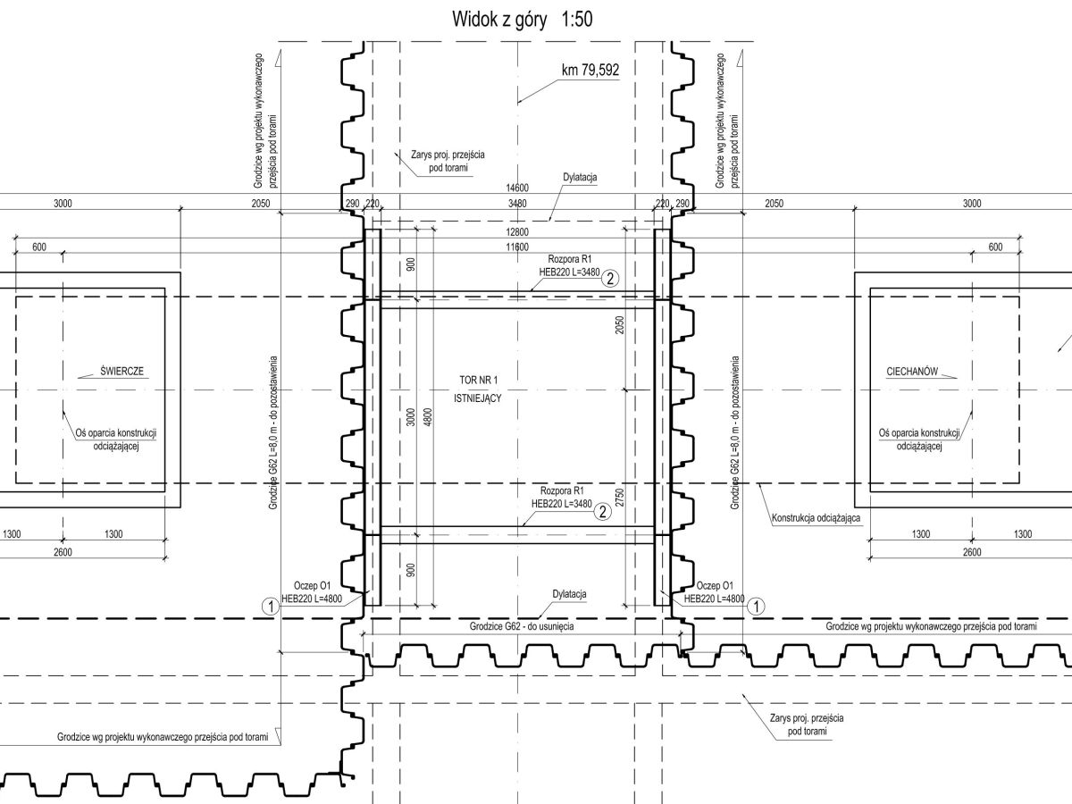
Lokalizacja: Linia kolejowa E65, przystanek osobowy Świercze Rozpiętość teoretyczna konstrukcji odciążającej: 10,8 m Rodzaj konstrukcji: stalowa. Projekt wykonawczy. Obiekt zrealizowany.
Lokalizacja: Linia kolejowa E65, stacja Gralewo Rozpiętość teoretyczna konstrukcji odciążającej: 10,8 m Rodzaj konstrukcji: stalowa. Projekt wykonawczy. Obiekt zrealizowany.
Lokalizacja: Linia kolejowa E65, stacja Legionowo Rozpiętość teoretyczna konstrukcji odciążającej: 12,0 m Rodzaj konstrukcji: stalowa. Projekt wykonawczy. Obiekt zrealizowany.
Lokalizacja: Linia kolejowa E65, stacja Gąsocin Rozpiętość teoretyczna konstrukcji odciążającej: 11,6 m Rodzaj konstrukcji: stalowa. Projekt wykonawczy. Obiekt zrealizowany.
Lokalizacja: Linia kolejowa E65, przystanek osobowy Gołotczyzna Rozpiętość teoretyczna konstrukcji odciążającej: 11,6 m Rodzaj konstrukcji: stalowa. Projekt wykonawczy. Obiekt zrealizowany.
Rozpiętość teoretyczna: 15,5 m Rodzaj konstrukcji: stalowa. Projekt wykonawczy. Obiekt zrealizowany.
Rozpiętość teoretyczna: 12,0 m Rodzaj konstrukcji: stalowa. Projekt wykonawczy. Obiekt zrealizowany.
Rozpiętość teoretyczna: 24,1 m Rodzaj konstrukcji: stalowa. Projekt wykonawczy. Obiekt zrealizowany.