Projekt Montażu Konstrukcji Odciążającej i Zabezpieczenia Wykopu
Lokalizacja: Linia kolejowa E59, odcinek Pęgów – Oborniki Śląskie
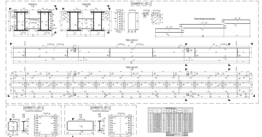
Rozpiętość teoretyczna konstrukcji odciążającej: 21,8 m
Rodzaj konstrukcji: stalowa.
Projekt wykonawczy.
Obiekt zrealizowany.

