Budynek Mieszkalny Wielorodzinny z Lokalem Usługowym w Warszawie
Lokalizacja: Warszawa. Powierzchnia całkowita: 3 600 m2 Rodzaj konstrukcji: żelbetowa monolityczna.
Lokalizacja: Warszawa. Powierzchnia całkowita: 3 600 m2 Rodzaj konstrukcji: żelbetowa monolityczna.
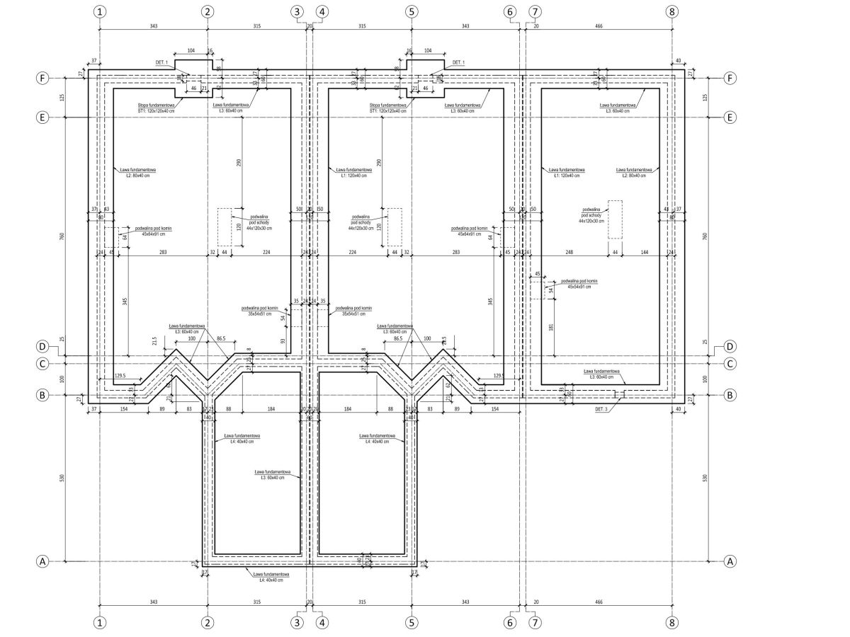
Lokalizacja: Wrocław. Powierzchnia całkowita: 10 300 m2 Rodzaj konstrukcji: ławy i stopy fundamentowe żelbetowe, wylewane; ściany murowane i żelbetowe wylewane; stropy żelbetowe typu Filigran oraz płyty kanałowe sprężane i stropy z płyt TT. Projekt budowlany i wykonawczy.
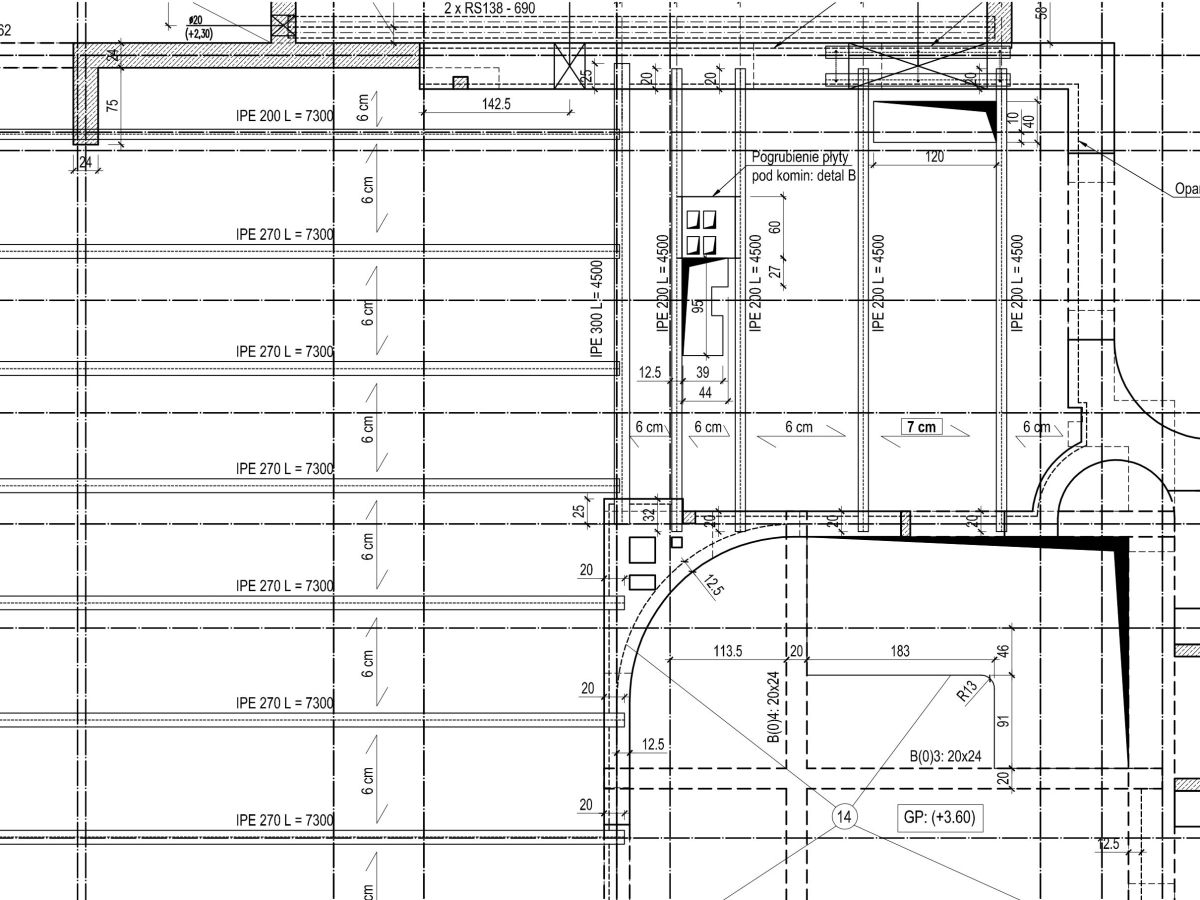
Lokalizacja: Myszków. Rodzaj konstrukcji: konstrukcja stalowa posadowiona na płycie żelbetowej. Projekt budowlany, wykonawczy i warsztatowy.
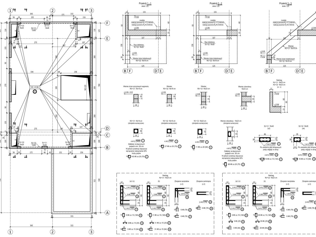
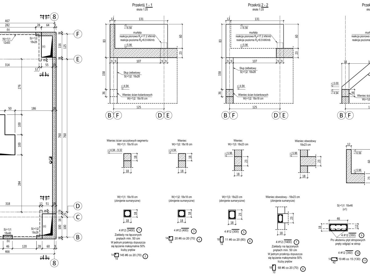
Lokalizacja: Wrocław. Powierzchnia całkowita: 10 000 m2 Rodzaj konstrukcji: żelbetowa monolityczna. Projekt budowlany i wykonawczy.
Lokalizacja: ul. Główna, Wrocław. Powierzchnia całkowita: 13 500 m2 Rodzaj konstrukcji: żelbetowa monolityczna, stalowa. Projekt budowlany i wykonawczy.
Lokalizacja: Warszawa, ul. Włościańska. Powierzchnia całkowita: 8 200 m2. Rodzaj konstrukcji: żelbetowa monolityczna. Projekt wykonawczy.
Lokalizacja: Warszawa, al. Krakowska. Powierzchnia całkowita: 55 000 m2 Rodzaj konstrukcji: żelbetowa monolityczna. Projekt budowlany i wykonawczy. Obiekt zrealizowany.
Lokalizacja: Katowice Powierzchnia całkowita: 500 m2 Rodzaj konstrukcji: stalowa. Projekt warsztatowy. Obiekt zrealizowany.
Lokalizacja: Warszawa, ul. Elżbiety Rakuszanki. Powierzchnia całkowita: 9 000 m2 Rodzaj konstrukcji: żelbetowa monolityczna. Projekt budowlany i wykonawczy. Obiekt zrealizowany.
Lokalizacja: Warszawa, ul. Elżbiety Rakuszanki. Powierzchnia całkowita: 18 000 m2 Rodzaj konstrukcji: żelbetowa monolityczna. Projekt budowlany i wykonawczy. Obiekt zrealizowany.
Lokalizacja: Warszawa, ul. Wiertnicza. Powierzchnia całkowita: 1 500 m2 Rodzaj konstrukcji: żelbetowa monolityczna. Projekt budowlany i wykonawczy. Obiekt zrealizowany.
Lokalizacja: Warszawa, ul. Hoża. Powierzchnia całkowita: 600 m2 Rodzaj konstrukcji: żelbetowa monolityczna z dachem drewnianym. Projekt budowlany i wykonawczy.
Lokalizacja: Wrocław, ul. Kampinoska. Powierzchnia całkowita: 800 m2 Rodzaj konstrukcji: murowana, żelbetowa, stalowa, drewniana. Projekt budowlano – wykonawczy. Obiekt zrealizowany.
Lokalizacja: Warszawa, ul. Kociszewskich. Powierzchnia całkowita: 840 m2 Rodzaj konstrukcji: ściany nośne żelbetowe oraz murowane, stropy żelbetowe. Projekt budowlano – wykonawczy. Obiekt zrealizowany.
Lokalizacja: Laski, ul. Lipowianka. Powierzchnia całkowita: 720 m2 Rodzaj konstrukcji: tradycyjna murowana ze stropami i stropodachem gęstożebrowym. Projekt budowlany i wykonawczy. Obiekt zrealizowany.
Lokalizacja: Warszawa, ul. Al. Jerozolimskie. Powierzchnia całkowita: 8 000 m2 Rodzaj konstrukcji: żelbetowa monolityczna z dachem drewnianym. Projekt budowlany i wykonawczy. Obiekt zrealizowany.
Lokalizacja: Warszawa, ul. Al. Jerozolimskie. Powierzchnia całkowita: 8 000 m2 Rodzaj konstrukcji: żelbetowa monolityczna z dachem drewnianym. Projekt budowlany.
Lokalizacja: Wrocław, ul. Stanisławowska. Powierzchnia całkowita: 1 600 m2 Rodzaj konstrukcji: murowana, żelbetowa monolityczna, stalowa. Projekt budowlany i wykonawczy. Obiekt zrealizowany.
Lokalizacja: Żerniki Wrocławskie. Powierzchnia całkowita: 1 700 m2 Rodzaj konstrukcji: murowana, żelbetowa monolityczna, drewniana. Projekt budowlany i wykonawczy. Obiekt w realizacji.
Lokalizacja: Radom, ul. Kwiatkowskiego. Powierzchnia całkowita: 27 000 m2 Rodzaj konstrukcji: żelbetowa monolityczna. Projekt budowlany.
Lokalizacja: Milęcice, gmina Lubomierz. Powierzchnia całkowita: 420 m2 Rodzaj konstrukcji: tradycyjna murowana ze stropem gęstożebrowym, więźba dachowa drewniana. Projekt budowlany i wykonawczy.
Lokalizacja: Oleszna Podgórska, gmina Lubomierz. Powierzchnia całkowita: 420 m2 Rodzaj konstrukcji: tradycyjna murowana ze stropem gęstożebrowym, więźba dachowa drewniana. Projekt budowlany i wykonawczy.
Lokalizacja: Alesund, Norwegia. Powierzchnia całkowita: 420 m2 Rodzaj konstrukcji: stalowa. Projekt warsztatowy. Obiekt zrealizowany.
Lokalizacja: Alesund, Norwegia. Powierzchnia całkowita: 1 000 m2 Rodzaj konstrukcji: stalowa. Projekt warsztatowy. Obiekt zrealizowany.
Lokalizacja: Alesund, Norwegia. Powierzchnia całkowita: 2 550 m2 Rodzaj konstrukcji: stalowa. Projekt warsztatowy. Obiekt zrealizowany.
Lokalizacja: Kobierzyce, ul. Parkowa. Powierzchnia całkowita: 1 600 m2 Rodzaj konstrukcji: ściany nośne żelbetowe i murowane, strop gęstożebrowy, więźba drewniana. Projekt budowlany i wykonawczy. Obiekt zrealizowany.
Lokalizacja: Wrocław, Wysoka, ul. Jasna. Powierzchnia całkowita: 1 400 m2 Rodzaj konstrukcji: tradycyjna murowana ze stropami żelbetowymi typu filigran, więźba dachowa drewniana. Projekt budowlany i wykonawczy. Obiekt zrealizowany.
Lokalizacja: Wrocław, Wysoka, ul. Jasna. Powierzchnia całkowita: 1 400 m2 Rodzaj konstrukcji: tradycyjna murowana ze stropami żelbetowymi typu filigran, więźba dachowa drewniana. Projekt budowlany i wykonawczy. Obiekt zrealizowany.
Lokalizacja: Wrocław, Wysoka, ul. Jasna. Powierzchnia całkowita: 2 800 m2 Rodzaj konstrukcji: tradycyjna murowana ze stropami żelbetowymi typu filigran, więźba dachowa drewniana. Projekt budowlany i wykonawczy. Obiekt zrealizowany.
Lokalizacja: Wrocław, Wysoka, ul. Jasna. Powierzchnia całkowita: 600 m2 Rodzaj konstrukcji: tradycyjna murowana ze stropami żelbetowymi typu filigran, więźba dachowa drewniana. Projekt budowlany i wykonawczy. Obiekt zrealizowany.
Coś poszło nie tak. Proszę odświeżyć stronę i/lub spróbować ponownie.
