Estakada Rurociągów Technologicznych
Lokalizacja: Myszków. Ekspertyza wraz z projektem wzmocnienia istniejącej estakady w konstrukcji stalowej.
Lokalizacja: Myszków. Ekspertyza wraz z projektem wzmocnienia istniejącej estakady w konstrukcji stalowej.
Lokalizacja: Niepruszewo. Fundamenty pod urządzenia i konstrukcje stalowe. Projekt budowlany i wykonawczy.
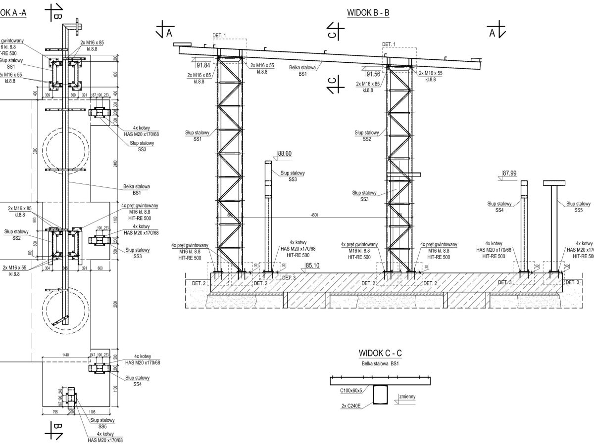
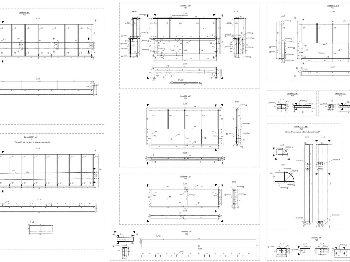
Lokalizacja: Niepruszewo. Konstrukcja wsporcza instalacji. Projekt budowlany, wykonawczy i warsztatowy.
Lokalizacja: Niepruszewo. Podkonstrukcja stalowa separatora wraz z pomostami serwisowymi. Projekt budowlany, wykonawczy i warsztatowy.
Obliczenia statyczne wraz z raportem dla podestu technicznego ze stali nierdzewnej AISI 304 / 1.4301.
Lokalizacja: Wrocław. Obiekty zaprojektowane w ramach projektu: kładka pod Mostem Pokoju, amfiteatr na skarpie, konstrukcja stalowa pomostu, żelbetowe ściany oporowe, prefabrykowane elementy żelbetowe, obiekty małej architektury. Projekt budowlany i wykonawczy.
Wysokość masztów: 9,5 m, 13,5 m, 17,5 m, 21,5 m, 25,5 m. Rodzaj konstrukcji: kratownica aluminiowa z odciągami stalowymi. Projekty budowlane i warsztatowe.
Lokalizacja: Choszczno. Wysokość wieży: 40,0 m. Rodzaj konstrukcji: stalowa. Opinia techniczna z oceną nośności.
Lokalizacja: strefy kibica Warszawa, Wrocław, Gdańsk, Poznań. Rodzaj konstrukcji: stalowa.
Lokalizacja: Wrocław, ul. Wałbrzyska. Powierzchnia całkowita elewacji z siatek: 720 m2 Rodzaj konstrukcji: stalowa.
Lokalizacja: Warszawa, pl. Europejski. Powierzchnia całkowita projektowanych elementów: 1 300 m2 Rodzaj konstrukcji: żelbetowa monolityczna.
Lokalizacja: Warszawa, pl. Europejski. Projekt zastępczego rozparcia fragmentu ściany szczelinowej. Projekt rampy wjazdowej. Projekt komór wentylacyjnych w poziomie L03 i L47. Projekt konstrukcji plenum (budynek B i C). Projekt przegród i konstrukcji pomocniczych w szybach windowych.
Lokalizacja: Warszawa, ul. Senacka.
Lokalizacja: ul. Syta, Warszawa.