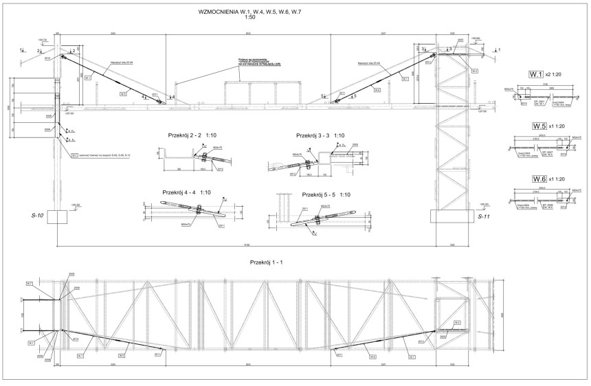
Estakada Rurociągów Technologicznych Lokalizacja: Myszków. Ekspertyza wraz z projektem wzmocnienia istniejącej estakady w konstrukcji stalowej.