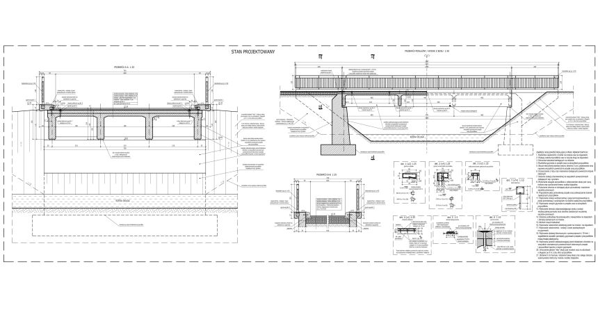
Remont Mostu Drogowego Nad Rzeką Długą Lokalizacja: Warszawa, ul. Wyszkowska Rozpiętość teoretyczna: 14,4 m Rodzaj konstrukcji: żelbetowa. Projekt budowlano – wykonawczy. Obiekt zrealizowany.