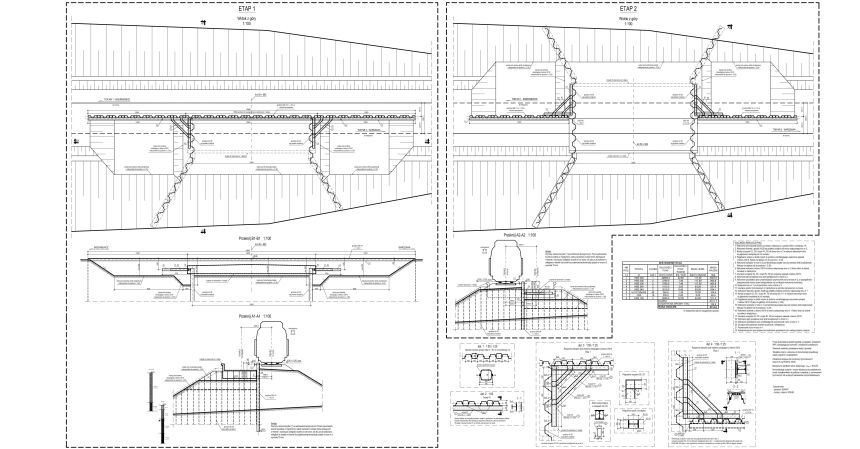
Zabezpieczenie Wykopu Pod Budowę Przejścia Dla Dużych Zwierząt Lokalizacja: Linia kolejowa Warszawa – Łódź Długość zabezpieczenia: 45,0 m Rodzaj konstrukcji: ścianka szczelna z grodzic stalowych. Projekt wykonawczy. Obiekt zrealizowany.