Przebudowa i Rozbudowa Szpitala Uzdrowiskowego „Jagusia” w Kudowie-Zdroju
Lokalizacja: Kudowa-Zdrój, ul. Słoneczna.
Powierzchnia całkowita: 3 000 m2
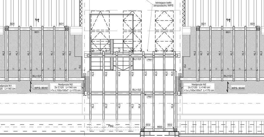
Rodzaj konstrukcji: ściany murowane, stropy z płyt kanałowych oraz WPS, zadaszenie stalowe oraz drewniane.
Projekt budowlany i wykonawczy.
Projekt zrealizowany.

