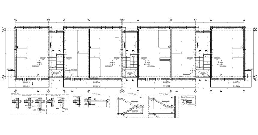
Zespół Budynków Mieszkalnych Wielorodzinnych w Bytomiu Lokalizacja: Bytom, ul. Nowa. Powierzchnia całkowita: 6 700 m2 Rodzaj konstrukcji: ściany nośne murowane, stropy żelbetowe. Projekt budowlany i wykonawczy. Obiekt w realizacji.