Zespół Magazynów Wysokiego Składowania i Montowni Zabawek Wraz z Częścią Administracyjno – Socjalną
Lokalizacja: Wola Ducka, powiat otwocki.
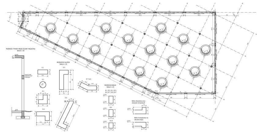
Powierzchnia całkowita: 7 500 m2
Rodzaj konstrukcji: żelbetowa monolityczna z dachem stalowym.
Projekt budowlany i wykonawczy.
Obiekt zrealizowany.

